The Philosopher, Bacton

4 Bedrooms
2 Bathrooms

Property Summary

The Philosopher is a thoughtfully designed four-bedroom home, perfectly suited to contemporary family life. Its layout strikes a balance between social spaces and private areas, making it ideal for families, or those who work from home.

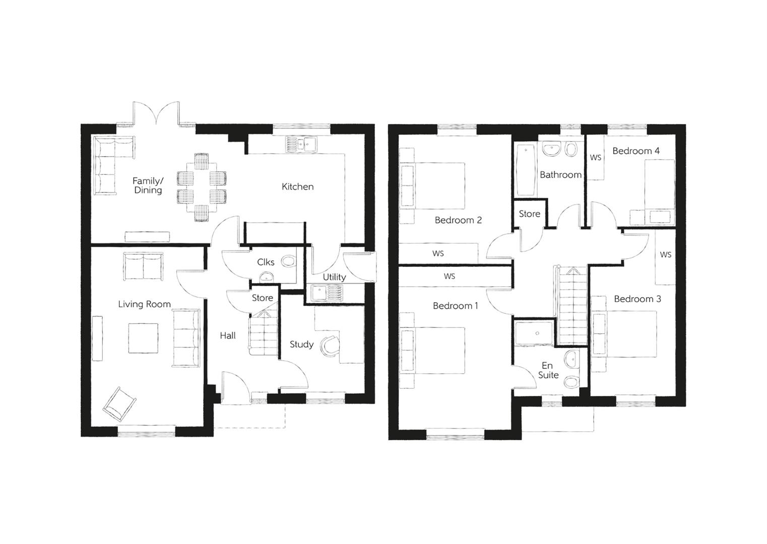
At the heart of the home is the open-plan kitchen, dining, and family area – a generous, informal space where the household can cook, eat, and relax together. French doors from the dining area open onto the rear garden, providing a seamless connection to the outdoors, while the layout easily accommodates a large dining table alongside a comfortable seating area or snug. A separate utility room leads off the kitchen, offering a practical space for laundry and storage, with an external door perfect for muddy shoes or dog paws.

The living room, positioned at the front of the home, is bright and welcoming, while the study provides a peaceful home office. Completing the ground floor is a conveniently located cloakroom and an under stairs storage cupboard, ideal for coats, shoes, and household essentials.

Upstairs, the principal bedroom benefits from a private en-suite shower room. Bedrooms two and three are both double in size, while the fourth bedroom is ideal for a nursery, walk in wardrobe or occasional guest room. All three share the family bathroom, and a landing storage cupboard provides a handy space for towels and bed linens.

The property benefits further from a double garage and off road parking.

Full Details

Additional Property Information
Estate Management Charge: £420
Internal Area: 1489 sq. ft.
Annual service charge: TBC
Council tax band: TBC
Tenure: Freehold


The additional information provided for council tax, service charges and ground rents (where applicable) is only an estimation. Please check with your Sales Advisor for more specific details.

About The Development
Ivy Hill is a well-connected development of 2, 3 and 4-bedroom homes in the peaceful Suffolk village of Bacton, offering a quiet and picturesque location on the outskirts of Stowmarket. The development will particularly appeal to first-time buyers and second-steppers. Residents benefit from energy-efficient homes paired with a charming rural setting, fantastic local amenities, and a strong community feel.

Bacton is a highly regarded Suffolk village that perfectly balances rural charm with everyday convenience. Set within attractive countryside, the village is known for its strong sense of community, traditional architecture, and peaceful surroundings, making it an appealing place to call home.

At the heart of Bacton is a well-supported village pub, church, and active village hall, all contributing to a welcoming and sociable atmosphere. The surrounding countryside offers an abundance of scenic walks and open spaces, ideal for those who enjoy the outdoors and village life.

Despite its tranquil setting, Bacton is well positioned for access to nearby towns. Stowmarket is just a short drive away and provides a mainline railway station with direct links to London Liverpool Street, along with a wide range of shops, schools, and amenities.

The village also benefits from convenient road links, making it suitable for commuters and families alike. Bacton offers the best of Suffolk village living — a peaceful environment, a friendly community, and excellent connectivity to the wider region.

Sales Office
Should you wish to have dedicated time with our Sales Advisor, please book an appointment before visiting us.

Sales office opening hours
Monday 10:00 - 17:00
Tuesday closed
Wednesday closed
Thursday 10:00 - 19:00
Friday 10:00 - 17:00
Saturday 11:00 - 17:00
Sunday 11:00 - 17:00



^All offers apply to specific plots and selected developments only. Terms and conditions apply. Contact your Bellway sales advisor to find out more or see terms and conditions on our Bellway website. Express Mover and Part Exchange scheme offers are subject to status, availability and eligibility. Bellway reserve the right to refuse a Part Exchange. Any promoted offer is subject to contract. 10-year NHBC Buildmark policy. This includes deposit protection from exchange of contracts, a two-year builder warranty from legal completion, and then eight years of structural defects insurance cover.*

Featured Properties